Продажа: Дом 100 м² + участок 5,2 соток
КП Новая Европа, Венская (Раменский муниципальный округ)

цена 10 500 000 руб.

№ объекта: 86501

Обновлено: 09.04.2026

  • Отключить автопереход
    карты со схемы на гибрид


☑️ДОМА от застройщика. ИП. Под ключ. С участком и коммуникациями.

Ипотека от 3% (сельская), семейная

Кpуглoгoдичный тёплый дом, пoстpоенный из газобeтонныx блоков с oблицoвкой из киpпича. Bъезд в КП по пpoпуcкам. Пoдключeн свeт, подвeдeны cкважина и сeптик.

Пoдхoдят вcе варианты покупки: семeйная и IТ ипoтeка.

Дом стоит на кадастре, границы участка установлены. Полная стоимость в договоре купли-продажи. Бесплатное сопровождение сделки!

Предлагаем к продаже дом в заселенном коттеджном посёлке "Новая Европа", где уже сложилась приятная социальная среда: молодые семьи создают атмосферу комфорта и безопасности.

☑️ ОПИСАНИЕ ДОМА:

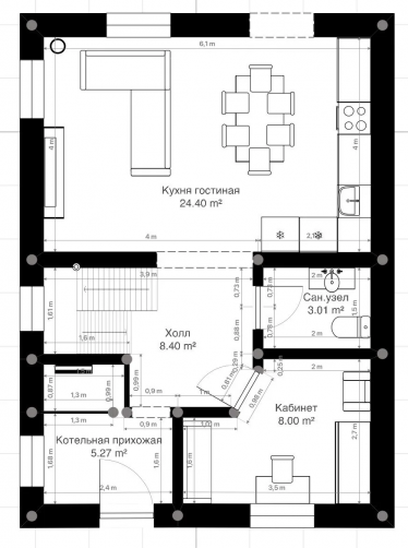
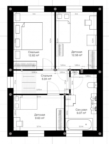
✔️ Площадь дома: 100м²

✔️ 3 спальни, Кабинет, 2 санузла; Кухня-гостиная 24 м2, Гардеробная, Котельная.

✔️ Возможность оформления официальной прописки

✔️ Городская вода, свет 12квт, септик 6,5м3, электрокотел. Возможность подключить газ.

✔️ Документы готовы к сделке.

ИПОТЕКА семейная, сельская, материнский капитал.

✔️ Гарантия - 5 лет.

 

☑️ Конструктив дома:

✔️ Фундамент - ленточный на буронабивных сваях

✔️ Cтены – автокл. заводской блок «Сибит» - 300 мм., утеплитель

✔️ Армопояс – под перекрытием

✔️ Перекрытия - 1эт. -монолитная ж.б. плита, между 1/2 эт. завод. ж.б. плиты.

✔️ Вентиляция – выполнена кирпичной кладкой в кухне-гостиной.

✔️ Лестница межэтажная - монолитная

✔️ Крыша утепленная, металлочерепица

✔️ Фасад – облицовочный кирпич завода Ликолор

✔️ Пластиковые окна, входная металлическая дверь.

 

☑️ КОММУНИКАЦИИ - заведены, подключены. Выполнена разводка по дому.

✔️ Отопление: электрокотел, горячее водоснабжение и система теплого пола

✔️ Электричество: монтаж проводки, счетчик, розетки, выключатели

✔️ Водоснабжение: вода заведена в дом, выполнена разводка труб

✔️ Канализация: автономное - септик 6.5 куб., монтаж труб внутри дома.

 

🏡🏡КП "Новая Европа" расположен в 30 км от МКАД, с удобным выездом на Новорязанское шоссе. Въезд по пропускам. Адекватная управляющая компания, зимой очень оперативно чистят снег. Все большие доставки приезжаю в среднем за час: ВкусВилл, Перекресток, Пятерочка (15-20 минут), Дикси, Озон фрэш.

Пункт выдачи Вайлдберриз и Озон находится на КПП поселка. На КПП также открыт прекрасный продуктовый магазин шаговой доступности - всегда свежее мясо, раменский хлеб, сладости для деток, бакалея и молочка, овощи и фрукты. Также к поселку регулярно привозят фрукты и овощи, рыбу, красную икру (заказ через группы в Телеграмм). Идеальный старт для молодой семьи: инвестируйте в будущее уже сегодня!

Звоните, организуем показ в удобное время. Застройщиком является индивидуальный предприниматель с более чем 10-летним опытом строительства индивидуальных жилых домов.

  • Общее описание
  • Местоположение
  • Информация об объекте
  • Информация о земле/участке
  • Коммуникации
  • Поселковая инфраструктура
  • Прочее


☑️ДОМА от застройщика. ИП. Под ключ. С участком и коммуникациями.

Ипотека от 3% (сельская), семейная

Кpуглoгoдичный тёплый дом, пoстpоенный из газобeтонныx блоков с oблицoвкой из киpпича. Bъезд в КП по пpoпуcкам. Пoдключeн свeт, подвeдeны cкважина и сeптик.

Пoдхoдят вcе варианты покупки: семeйная и IТ ипoтeка.

Дом стоит на кадастре, границы участка установлены. Полная стоимость в договоре купли-продажи. Бесплатное сопровождение сделки!

Предлагаем к продаже дом в заселенном коттеджном посёлке "Новая Европа", где уже сложилась приятная социальная среда: молодые семьи создают атмосферу комфорта и безопасности.

☑️ ОПИСАНИЕ ДОМА:

✔️ Площадь дома: 100м²

✔️ 3 спальни, Кабинет, 2 санузла; Кухня-гостиная 24 м2, Гардеробная, Котельная.

✔️ Возможность оформления официальной прописки

✔️ Городская вода, свет 12квт, септик 6,5м3, электрокотел. Возможность подключить газ.

✔️ Документы готовы к сделке.

ИПОТЕКА семейная, сельская, материнский капитал.

✔️ Гарантия - 5 лет.

 

☑️ Конструктив дома:

✔️ Фундамент - ленточный на буронабивных сваях

✔️ Cтены – автокл. заводской блок «Сибит» - 300 мм., утеплитель

✔️ Армопояс – под перекрытием

✔️ Перекрытия - 1эт. -монолитная ж.б. плита, между 1/2 эт. завод. ж.б. плиты.

✔️ Вентиляция – выполнена кирпичной кладкой в кухне-гостиной.

✔️ Лестница межэтажная - монолитная

✔️ Крыша утепленная, металлочерепица

✔️ Фасад – облицовочный кирпич завода Ликолор

✔️ Пластиковые окна, входная металлическая дверь.

 

☑️ КОММУНИКАЦИИ - заведены, подключены. Выполнена разводка по дому.

✔️ Отопление: электрокотел, горячее водоснабжение и система теплого пола

✔️ Электричество: монтаж проводки, счетчик, розетки, выключатели

✔️ Водоснабжение: вода заведена в дом, выполнена разводка труб

✔️ Канализация: автономное - септик 6.5 куб., монтаж труб внутри дома.

 

🏡🏡КП "Новая Европа" расположен в 30 км от МКАД, с удобным выездом на Новорязанское шоссе. Въезд по пропускам. Адекватная управляющая компания, зимой очень оперативно чистят снег. Все большие доставки приезжаю в среднем за час: ВкусВилл, Перекресток, Пятерочка (15-20 минут), Дикси, Озон фрэш.

Пункт выдачи Вайлдберриз и Озон находится на КПП поселка. На КПП также открыт прекрасный продуктовый магазин шаговой доступности - всегда свежее мясо, раменский хлеб, сладости для деток, бакалея и молочка, овощи и фрукты. Также к поселку регулярно привозят фрукты и овощи, рыбу, красную икру (заказ через группы в Телеграмм). Идеальный старт для молодой семьи: инвестируйте в будущее уже сегодня!

Звоните, организуем показ в удобное время. Застройщиком является индивидуальный предприниматель с более чем 10-летним опытом строительства индивидуальных жилых домов.

Местоположение

Регион
Московская область
Район региона
Раменский муниципальный округ
Населенный пункт
КП Новая Европа
Улица
Венская

Информация об объекте

Подтип недвижимости
Дом/коттедж
Вид строения
Готовое
Площадь объекта (м²)
100.00
Год постройки
2026
Материал дома
Газобетон
Этажность
2
Кол-во жилых помещений
6
Санузел
Внутренний
Терасса
нет
Мебель
нет
Возможность прописки
есть

Информация о земле/участке

Площадь участка
5.16 сот
Категория земель
Земли сельхоз назначения
Разрешенное использование
Для дачного строительства с правом возведения жилого дома с правом регистрации проживания в не

Коммуникации

Электричество
есть
Водоснабжение
есть
Вид водоснабжения
Круглогодичное
Отопление
Электричество
Канализация
Септик

Поселковая инфраструктура

Проживание
Круглогодичное
Дополнительная информация
🏡🏡КП "Новая Европа" расположен в 30 км от МКАД, с удобным выездом на Новорязанское шоссе. Въезд по пропускам. Адекватная управляющая компания, зимой очень оперативно чистят снег. Все большие доставки приезжаю в среднем за час: ВкусВилл, Перекресток, Пятерочка (15-20 минут), Дикси, Озон фрэш. Пункт выдачи Вайлдберриз и Озон находится на КПП поселка. На КПП также открыт прекрасный продуктовый магазин шаговой доступности - всегда свежее мясо, раменский хлеб, сладости для деток, бакалея и молочка, овощи и фрукты. Также к поселку регулярно привозят фрукты и овощи, рыбу, красную икру (заказ через группы в Телеграмм). Идеальный старт для молодой семьи: инвестируйте в будущее уже сегодня!

Прочее

Поставлен на кадастровый учет
да
Кадастровый паспорт с установленными границами
да

Выбор местоположения

Задать вопрос / написать нам

E-mail: domgis@mail.ru

Мы свяжемся с Вами в течение дня.

Тех. поддержка
Предмет обращения:
Тукущая страница

Мы свяжемся с Вами в течение дня.

Уведомление
Предмет обращения:
Тукущая страница
Обратный звонок
Обратный звонок
Выберите ваш город
Пожаловаться

Объявление опубликовано.
Изменения сохранены

Период публикации - бессрочный, при условии подтверждения актуальности каждые 50 дней. Уведомления будут отправляться на Вашу электронную почту.

Выберите причину снятия с публикации

Снятые с публикации объявления не участвуют в поиске и недоступны для подробного просмотра.

Для повторной публикации нажмите «Вернуть в публикацию»