Небольшой дом с двускатной крышей — отличный вариант для семьи из 3-4 человек. Благодаря четкой геометрической форме и декоративному оформлению деревянными панелями дом легко впишется в любой ландшафт.
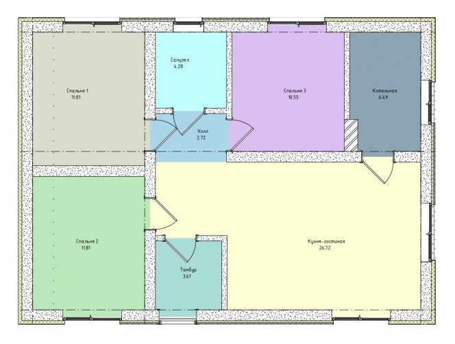
Лаконичный, экономичный дом обладает внутренней простотой. Планировкой предусмотрены просторная кухня-гостиная, три спальни, санузел и котельная. Комнаты квадратной формы позволяют наиболее эффективно использовать внутреннее пространство. Большие панорамные окна обеспечивают поток естественного света и красивый вид на окружающую природу. Этот дом — уютное и функциональное решение для тех, кто ценит практичность и простоту в деталях.
Фасад - декоративная штукатурка
Комплектация STANDART - 6 200 000 р.
Комплектация WHITE BOX - 7 500 000 р.
Фасад - облицовочный кирпич
Комплектация STANDART - 6 600 000 р.
Комплектация WHITE BOX - 7 900 000 р.
Выбор местоположения
Мы свяжемся с Вами в течение дня.